Suunnittelu ja valvontapalvelut
Suunnittelu ja valvontapalvelut
Tarjoamme kokonaisvaltaisen palvelun aina suunnittelusta ja valvonnasta oikea-aikaiseen toteutukseen.
Kauttamme hoituvat kaikki rakentamisessa tarvittavat suunnitelmat ja valvonnat:
- Rakennus- ja rakennesuunnitelmat
- Vastaavan mestarin palvelut
- Kustannusarviot
- Havainnekuvat
- Jätevesisuunnitelmat
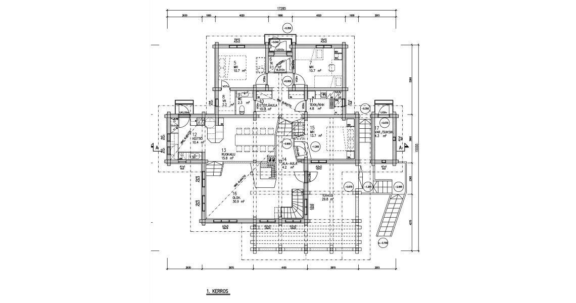
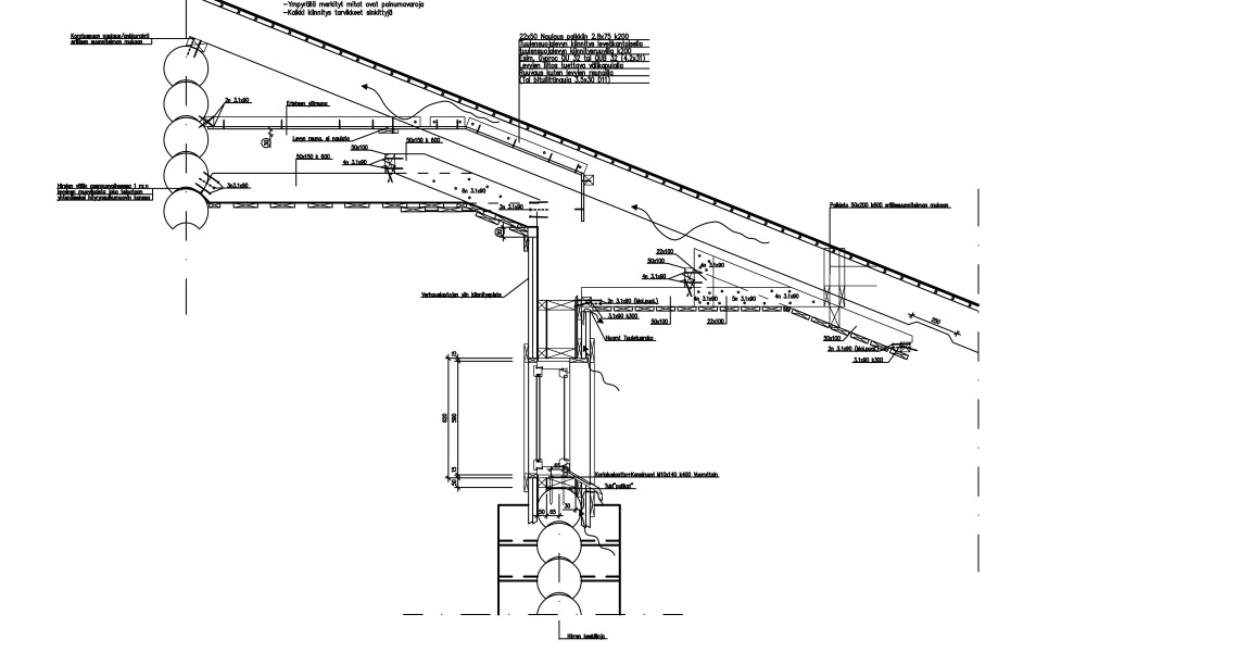
Katso alla kuvat esimerkkisuunnitelmista. Lisää kuvia galleriassa.







































